湘南・小田原・房総【バイザシービルダーズ倶楽部】なら海そば移住と家づくりで信頼できる工務店・住宅会社が見つかります
  • ビルダーズ倶楽部ってなに?
  • FAQ:よくあるご質問
  • お客様の声
  • 雑誌バイザシーについて
  • 海辺の暮らし・取材ノート
  • 移住の実例と基礎知識(湘南、外房)
  • 海沿いの家実例集
  • 家づくりなんでも相談室・お問合せ
  • 会社概要
  • PICK UP

【KIBARI】分譲地プロジェクト〜戸塚区上矢部町・2区画の分譲地に建築家がKIBARIの家をプランニング

  • Posted on 2019年6月12日2023年11月22日
  • 1 minute read
  • 湘南ビルダーズクラブ
Total
0
Shares
0
0
0
0

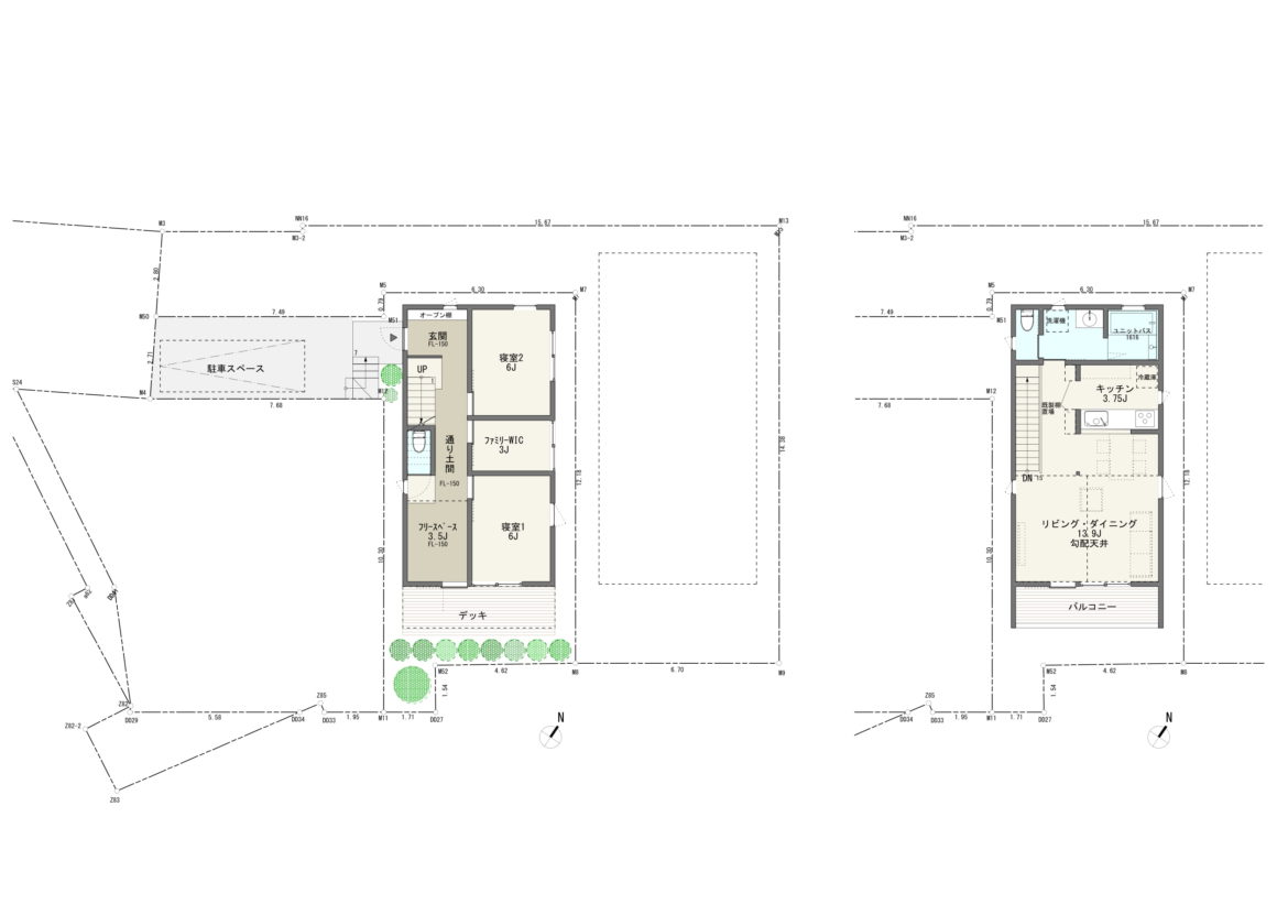
横浜市戸塚区上矢部町の分譲宅地(2区画)

緑豊かな南斜面、抜け感も抜群の丘陵地にある分譲地に2名の建築家が「KIBARIの家」をプランニングしました。信州カラマツの外壁と自然豊かな同エリアの環境とがマッチした素敵な住まいになっています。建売住宅では満足出来ない『自分らしくちょっとカッコいい家!』が欲しい方にオススメのKIBARIの家。コストのことも真剣に考えた本物の木張りの家、そんなKIBARIの家づくりを一緒に愉しみませんか?

(1区画)100㎡(約30坪)1880万円

建物参考価格:2170万円  ※別途工事:外構工事、デッキ工事、地盤改良、深基礎工事

延床面積:78.67㎡(1階面積:36.85㎡ 2階面積:41.82㎡)


(1区画)【片流れのKIBARIの家(参考プラン)】
2階リビングのイメージ

(2区画)100㎡(約30坪)1680万円

建物参考価格:2265万円  ※別途工事:外構工事、デッキ工事、地盤改良、深基礎工事

延床面積:88.26㎡(1階面積:44.13㎡ 2階面積:44.13㎡)

2区画)【切妻屋根のKIBARIの家(参考プラン)】
土間(玄関)のイメージ

所在/神奈川県横浜市戸塚区上矢部町Ø電車・バス/JR東海道本線、横須賀線「戸塚」 Øバス8分「上矢部インター」バス停より徒歩4分Ø車/横浜新道「上矢部IC」より車で2分、第3京浜「玉川IC」まで車で20分

(物件概要)土地権利/所有権  地目/山林  都市計画/市街化区域  用途地域/第一種住居地域  建ぺい率/60% 容積率/200%  接道/西側約5.5m  現況/更地  引渡し/即可  設備/公営水道・本下水・都市ガス (引込費用負担有)  開発道路 45.52㎡、位置指定道路 97㎡、各1/10持分登記 ※現況と図面が異なる場合は現況を優先とさせていただきます

Øご予約・お問合せ先: 0120-552-970(当山・西村)KIBARI事務局・仲介: 株式会社フリーリーデザインボックス 川崎市宮前区鷺沼2-19-4 SaginumaHills401

***イメージ写真はKIBARIの家のイメージです。

Total
0
Shares
Share 0
Tweet 0
Pin it 0
Share 0
Related Topics
  • 戸塚区上矢部#KIBARI#建築家の家#木の家#横浜の住宅#葱ばり
湘南ビルダーズクラブ

Previous Article
  • 移住の実例と基礎知識(湘南、外房)

【鎌倉移住】教えて! 海そば移住の○と✖️

  • Posted on 2019年6月9日2025年4月5日
  • 湘南ビルダーズクラブ
記事を読む
Next Article
  • PICK UP

【キリガヤ】7月5日(金)~7日(日)この椅子に座ったら3年は立ち上がれないというくらい座り心地のよい椅子展

  • Posted on 2019年6月16日2021年9月17日
  • 湘南ビルダーズクラブ
記事を読む
おすすめの記事
記事を読む
  • PICK UP
  • 海沿いの家実例集

【鎌倉】OLD but NEW 天守台に佇む邸

  • Posted on 2026年1月7日2026年1月7日
  • バイザシー 編集部
記事を読む
  • PICK UP
  • キリガヤ住宅実例集

電子書籍『湘南の家づくり図鑑❺』逗子のキリガヤ、木とともに暮らす、1月10日電子書店で配信スタートです。

  • Posted on 2026年1月7日2026年1月7日
  • バイザシー 編集部
記事を読む
  • PICK UP

一宮移住をお考えのあなた! 一宮町移住体験ツアー11月29日(土)いよいよ開催です!

  • Posted on 2025年11月18日2025年11月18日
  • バイザシー 編集部
記事を読む
  • PICK UP
  • 海辺の暮らし・取材ノート

【写真展】竹沢うるま写真展 On The Shore &トークセッション〜波の音が生まれる場所〜12月15日から鎌倉にて開催。

  • Posted on 2025年11月18日2025年11月18日
  • バイザシー 編集部
記事を読む
  • PICK UP
  • インタビュー
  • 一宮発コラム・千葉フォルニア

【笑顔あふれるCHIBAFORNIAインタビュー byMAKO】一宮うまの里 代表 大野さやかさん

  • Posted on 2025年11月10日2025年11月10日
  • バイザシー 編集部
記事を読む
  • PICK UP
  • 家づくり図鑑

【湘南の家づくり図鑑❹】ていねいでおしゃれな湘南の暮らしのリビングルームに大注目。センスの良いお部屋50例掲載

  • Posted on 2025年11月5日2025年11月18日
  • バイザシー 編集部
記事を読む
  • PICK UP
  • キリガヤ住宅実例集
  • 海辺の暮らし・取材ノート

【キリガヤクラフトフェスタ 2025】10/25(土)開催決定!

  • Posted on 2025年10月13日2025年10月13日
  • バイザシー 編集部
記事を読む
  • PICK UP
  • インタビュー

【LEGENDインタビュー】写真家:竹沢うるまさん(神奈川県鎌倉市)

  • Posted on 2025年9月17日2025年9月18日
  • バイザシー 編集部
弊社その他サービスのご案内
  • 住宅撮影フォトサービス
  • 会社概要カタログ・WEBなどクリエイティブ制作
  • バイザシー free定期購読(有料)
  • 各種お問い合わせ
サイト内検索
最近の記事
  • 1
    【鎌倉】OLD but NEW 天守台に佇む邸
    • Posted on 2026年1月7日2026年1月7日
  • 2
    電子書籍『湘南の家づくり図鑑❺』逗子のキリガヤ、木とともに暮らす、1月10日電子書店で配信スタートです。
    • Posted on 2026年1月7日2026年1月7日
  • 3
    一宮移住をお考えのあなた! 一宮町移住体験ツアー11月29日(土)いよいよ開催です!
    • Posted on 2025年11月18日2025年11月18日
  • 4
    【コンベックスとタブレット】第4話〜斜面建築のススメ
    • Posted on 2025年11月18日2025年11月18日
  • 5
    【写真展】竹沢うるま写真展 On The Shore &トークセッション〜波の音が生まれる場所〜12月15日から鎌倉にて開催。
    • Posted on 2025年11月18日2025年11月18日
About

海のそばで、暮らそう。

“BYTHESEA.online”は、フリーマガジン「バイザシー」のオンラインメディアです。 海を愛する皆さまに向け、日常に海を感じて過ごす魅力的なライフスタイルを発信しています。 フリーマガジンの設置店舗も随時募集中!お申し込みはお問い合わせから。
問い合わせる

©️ 2009~ L&M Inc.
プライバシーポリシー 著作権・免責事項

Input your search keywords and press Enter.